НАЗАД
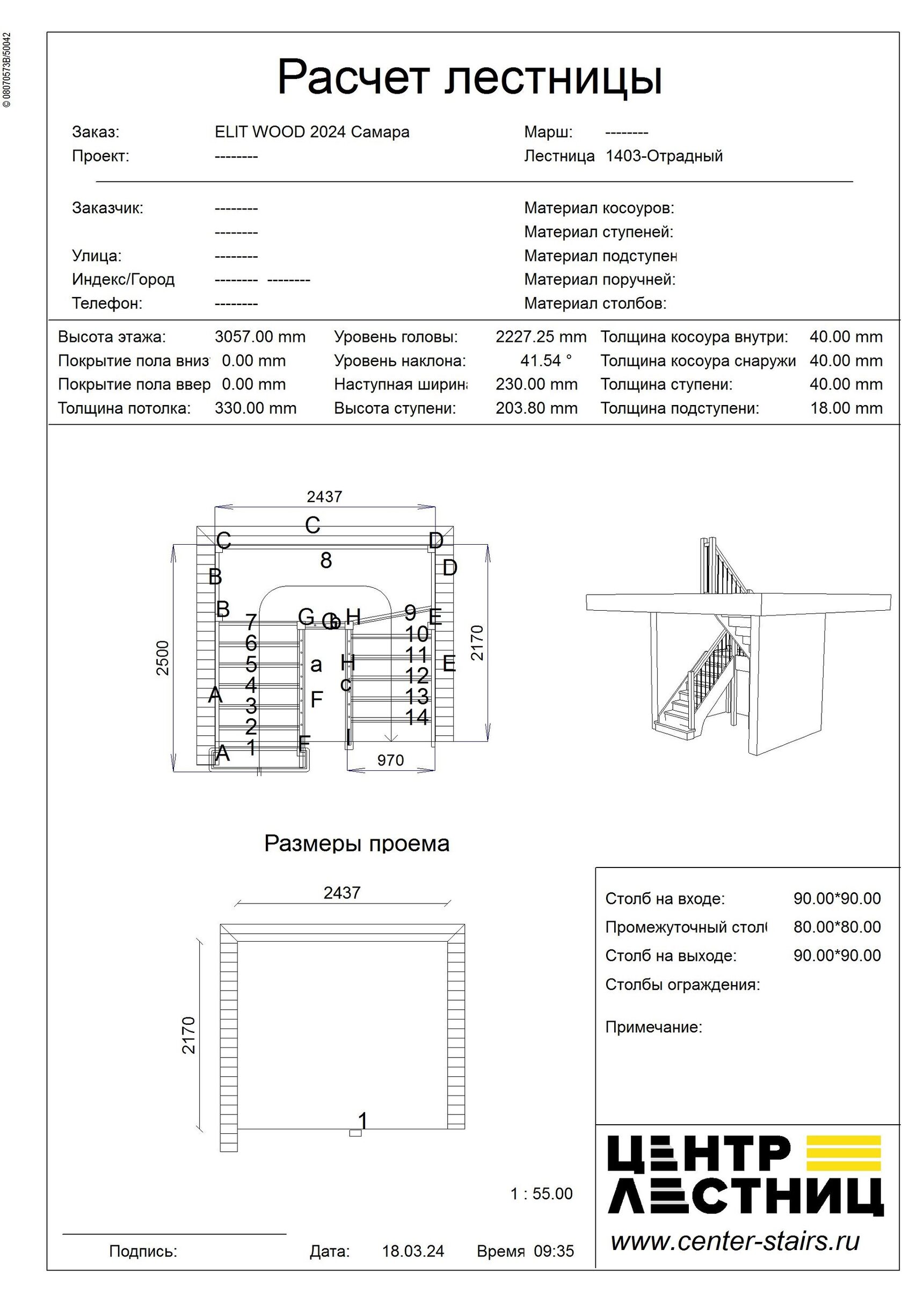
Проект "1403-Отрадный" (Сосна-Ясень)
Деревянные Лестницы
172800,00
р.
р.
Купить сейчас
Проект "1403-Отрадный " (Сосна-Ясень)
Поворотная деревянная лестница на Тетивах
Материал:
Сосна-Ясень
Окраска:
Ступени,Поручни -TimberCare 350034 - "Пралине"
Остальное -эмаль APL20G "белая".
Характеристика:
Высота этажа: 3057 mm
Проем: 2437х2170 mm
Высота ступени: 203 мм
Глубина ступени: 230 мм
Угол наклона: 41°
В стандартной комплектации лестницы:
столбы -Квадратные , балясины -Трубки
Лестница поставляется в разобранном виде, упакованной в термоплёнку и собирается на объекте монтажа по указаниям, приведенным в паспорте на лестницу.
К данной лестнице Вы можете дополнительно у нас приобрести: ограждение проема, обшивку проема и коврики.
Описание:
Палитра Цветов
Столбы и Балясины
Описание:
Палитра Цветов
262006 - Темный орех
262005 - Ранняя Америка
262003 - Золотой дуб
262004 - Весенний дуб
262013 - Орех пекан / Традиционный орех
262012 - Ипсвичская сосна
262014 - Золотой махагон
307413 - Коралловый
262007 - Дуб гансток
262015 - Светлый орех
262008 - Традиционная вишня
307414 - Рубиновый
262016 - Каберне
262009 - Черешня
300387 - Шиповник
269394 - Графит
304559 - Угольный серый
262010 - Кофе
269395 - Эбеновое дерево
262011 - Выбеленное дерево
267702 - Скандинавский бук(White)
297424 - Античный белый
APL20G Эмаль белая
Столбы и Балясины
Left
Right
Промокод
Активировать
Нужна ли Доставка
Самовывоз
Тольятти +2500 руб.
Самара + 4000 руб.
Самарская обл. + 4700 руб.
В другие регионы +1000 ( До транспорной компании)
Поле не заполнено
Оставить заявку
Поле не заполнено
Made on
Tilda